Plastové okná Deceuninck

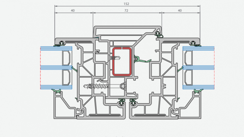
Elegant ThermoFibra Infinity 76 X
NAJLEPŠIA KOMBINÁCIA DIZAJNU A TECHNOLÓGIE
Rovné krídlo dverí s elegantným, moderným dizajnom – prémiová verzia systému Elegant dokonale dopĺňa mnohé návrhy budov. Krídlo dverí, vystužené súvislými zväzkami sklolaminátu, sa vyznačuje mimoriadne úzkou 7 mm drážkou. V kombinácii s výstužou Forthex v zárubni zaručuje krídlo dverí vynikajúcu tepelnú izoláciu a výkon.
| SPECYFIKACJA TECHNICZNA | Elegant Thermofibra Infinity 76 X |
|---|---|
| Hĺbka rámu | 76 mm |
| Hĺbka krídla | 85 mm |
| Verzia krídla | Nie je zarovnané |
| Výška drážky v zárubni | 25 mm |
| Šírka drážky rámu | 9 mm |
| Výška drážky v krídle dverí | 23 mm |
| Šírka drážky v krídle dverí | 7 mm |
| Možná šírka skla v ráme | 10-55 mm |
| Možná šírka skla v krídle | 22-67 mm |
| Možnosť lepenia skla | Voliteľné |
| Metóda utesnenia | Vnútorné tesnenie drážky v krídle + vonkajšie tesnenie rámu s centrálnym tesnením |
| Súčiniteľ Uf prierezu rámu (W/m²K) | 0,88** |
** Teplá skriňa podľa normy ISO 12412-2 s výplňou 44 mm

Elegant Abstract 76 X
JEDINEČNÝ DIZAJN, KTORÝ OCENIL PRIEMYSEL AJ ARCHITEKTI
Ide o úplný prelom v dizajne PVC – krídlo, 100 % zarovnané s rámom, sa vyznačuje modernistickým, priemyselným dizajnom, vďaka čomu je medzi PVC oknami jedinečné. Navyše, charakteristické tvary s definovanými hranami robia krídlo perfektným doplnkom k hliníkovým prvkom. Obrázok ho zobrazuje v kombinácii s rámom vystuženým technológiou Forthex.
| Špecifikácia | Elegant Abstract 76 X |
|---|---|
| Hĺbka rámu | 76 mm |
| Hĺbka rámu a krídla | 92 mm |
| Verzia krídla | Zarovnané (zásuvné) |
| Výška pántu v ráme | 25 mm |
| Šírka pántu v ráme | 9 mm |
| Výška pántu v krídle | 23 mm |
| Šírka pántu v krídle | 9 mm |
| Možná šírka skla v ráme | 10-55 mm |
| Možná šírka skla v krídle | 26-71 mm |
| Možnosť vsadenia skla | Povinné |
| Spôsob tesnenia | Tesnenie pántu vnútri krídla + vonkajšie tesnenie rámu s stredovým tesnením |
| Uf sekcia rámu / zárubne (W/m²K) | 0,94 W/m²K *, 1,1 W/m²K |
* Hodnota získaná metódou Hot Box s oceľovou výstužou v ráme
** Hodnota vypočítaná podľa normy ISO 10077-2 s výplňou 36 mm

Elegant Origin 76 X
MODERNÝ VZHĽAD A FUNKČNOSŤ V MODERNOM ŠTÝLE
Špičková technológia v kombinácii s tradičným dizajnom. Oceľou vystužené krídlo so šikmým tvarom dodáva dverám skutočný retro štýl. Široká škála dýh s textúrami a farbami dreva a široká farebná paleta dodávajú dverám rustikálny charakter. Ideálne pre domy v tradičnom vidieckom alebo klasickom štýle.
| Špecifikácia | Elegant Origin 76 X |
|---|---|
| Hĺbka rámu | 76 mm |
| Hĺbka rámu a krídla | 90 mm |
| Verzia krídla | Čiastočne zarovnané |
| Výška pántu v ráme | 25 mm |
| Šírka pántu v ráme | 9 mm |
| Výška pántu v krídle | 25 mm |
| Šírka pántu v krídle | 23 mm |
| Možná šírka skla v ráme | 10-55 mm |
| Možná šírka skla v krídle | 10-55 mm |
| Možnosť vsadenia skla | Voliteľné |
| Spôsob tesnenia | Tesnenie pántu vnútri krídla + vonkajšie tesnenie rámu s stredovým tesnením |
| Uf sekcia rámu / zárubne (W/m²K) | 1,1* |
* Hodnota vypočítaná podľa normy ISO 10077-2 s výplňou 36 mm

Elegant Infinity 76 X
ČAS NA NOVÝ ŠTANDARD
Štíhle, nezapustené krídlo sa vyznačuje minimalistickým dizajnom s výraznými tvarmi a mimoriadne úzkou 9 mm drážkou. Rovnako ako ostatné verzie, aj tento profil je vybavený centrálnym tesnením, ktoré umožňuje ešte lepšiu vodotesnosť.
| Špecifikácia | Elegant Infinity 76 X |
|---|---|
| Hĺbka rámu | 76 mm |
| Hĺbka rámu a krídla | 80 mm |
| Verzia krídla | Nezarovnané |
| Výška pántu v ráme | 25 mm |
| Šírka pántu v ráme | 9 mm |
| Výška pántu v krídle | 23 mm |
| Šírka pántu v krídle | 9 mm |
| Možná šírka skla v ráme | 10-55 mm |
| Možná šírka skla v krídle | 14-59 mm |
| Možnosť vsadenia skla | Voliteľné |
| Spôsob tesnenia | Tesnenie pántu vnútri krídla + vonkajšie tesnenie rámu s stredovým tesnením |
| Uf sekcia rámu / zárubne (W/m²K) | 0,93 W/m²K *, 1,1 W/m²K ** |
* Hodnota získaná metódou Hot Box s oceľovou výstužou v ráme
** Hodnota vypočítaná podľa normy ISO 10077-2 s výplňou 36 mm








